Дома продажа / Дома, Грозный, 23 000 000
Кратко
| ID | 39898612 |
|---|---|
| Категория | Дома |
| Город | Грозный |
| Этажность | 2 |
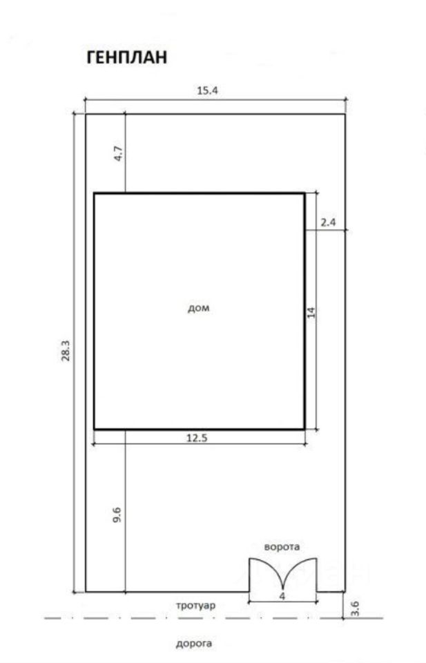
| Площадь общая | 342 |
| Площадь участка | 4.5 |
Продаётся дом в элитном посёлке Калинина (Маас).
На фото представлен фасад дома в том виде, в котором он изначально задумывался.
В доме — 7 жилых комнат.
Первый этаж: гостиная, кухня-столовая и кабинет.
Второй этаж: две детские спальни, родительская спальня и просторный холл, идеально подходящий для зоны отдыха или просмотра ТВ.
Имеется подвал площадью 44 м² с удобным входом с первого этажа. Высота потолков в доме — 3 метра, в подвале — немного ниже.
На каждом этаже предусмотрена ванная комната или душевая. Все помещения просторные — при желании в каждой спальне можно организовать гардеробную.
Если в доме будут проживать пожилые члены семьи, часть столовой можно без ущерба для комфорта переоборудовать в полноценную спальню на первом этаже. Проектом уже предусмотрен дверной проём.
На заднем дворе запланировано небольшое, но уютное пространство для отдыха.
Дом строился для себя, постройка свежая. Расположен на тихой асфальтированной улице, в окружении частного сектора. Коммуникации: газ, электричество, центральная канализация.
Соседи — в основном старожилы, спокойные и доброжелательные. В пешей доступности вся необходимая инфраструктура: магазины, школы, кафе, рестораны и одна из самых красивых мечетей Кавказа — мечеть имени Пророка Ибрагима.
На фото представлен фасад дома в том виде, в котором он изначально задумывался.
В доме — 7 жилых комнат.
Первый этаж: гостиная, кухня-столовая и кабинет.
Второй этаж: две детские спальни, родительская спальня и просторный холл, идеально подходящий для зоны отдыха или просмотра ТВ.
Имеется подвал площадью 44 м² с удобным входом с первого этажа. Высота потолков в доме — 3 метра, в подвале — немного ниже.
На каждом этаже предусмотрена ванная комната или душевая. Все помещения просторные — при желании в каждой спальне можно организовать гардеробную.
Если в доме будут проживать пожилые члены семьи, часть столовой можно без ущерба для комфорта переоборудовать в полноценную спальню на первом этаже. Проектом уже предусмотрен дверной проём.
На заднем дворе запланировано небольшое, но уютное пространство для отдыха.
Дом строился для себя, постройка свежая. Расположен на тихой асфальтированной улице, в окружении частного сектора. Коммуникации: газ, электричество, центральная канализация.
Соседи — в основном старожилы, спокойные и доброжелательные. В пешей доступности вся необходимая инфраструктура: магазины, школы, кафе, рестораны и одна из самых красивых мечетей Кавказа — мечеть имени Пророка Ибрагима.
Контакты на сайте: