Дома продажа / Дома, Россия, Новосибирская область, Новосибирск, Далидовича улица, 2 500 000

Кратко

ID 39958818
Категория Дома
Страна Россия
Регион Новосибирская область
Город Новосибирск
Метро Октябрьская
Улица Далидовича улица
Этажность 1
Материал стен деревянный
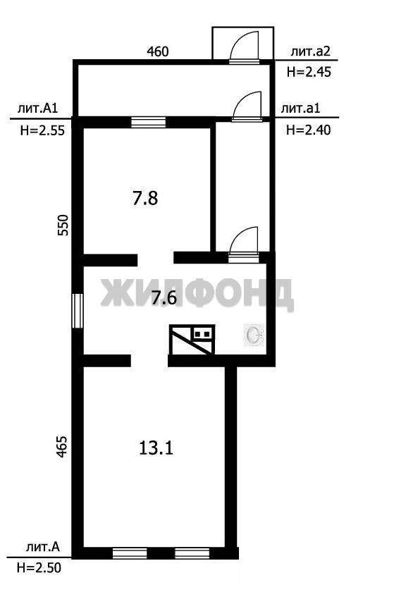
Площадь общая 76.4
Площадь участка 2
Телефон
Дом по ул. Далидовича. Общей площадью: 76.40 кв.м. Предложение для тех, кто хочет жить и работать в центре Октябрьского района! В продаже половина дома с отдельным входом. Дом на двух хозяев. Планировка дома -две комнаты, кухня, коридор, сени. В доме газовое отопление, слив местный, вода центральная. Все, что Вы видите на фотографиях, остается новым владельцам. На участке расположены баня, постройка для хозяйственных нужд, туалет. Превосходная локация, рядом все что нужно для комфортной жизни: детские сады, школы, лицеи, спортивные клубы, басейны, центры молодежи, центры здоровья и красоты, медицинские учреждения, автосервисы, кафе, сауны, торговые павильоны и магазины, остановка общественного транспорта в шаговой доступности. Также, в будущем, у Вас есть замечательная возможность получить выгодные предложения от топовых застройщиков в этой локации. Документы по дому полностью готовы к сделке, никаких обременений, продажа за наличный расчет. Приглашаем Вас на просмотр! ! Рассмотрим Ваши предложения! ! Возможен обмен на вашу недвижимость. Возможна продажа в рассрочку. При звонке, пожалуйста, сообщите номер варианта - JV080541107212 [#7821743#]

Карта

Похожие

Дома
Площадь м2: 404.4//
Этаж: 0/3
Дома
Площадь м2: 51.6//
Этаж: 0/2
Дома
Площадь м2: 77.2//
Этаж: 0/1
Дома
Площадь м2: 131.5//
Этаж: 0/2
Дома
Площадь м2: 76.4//
Этаж: 0/1