Дома продажа / Дома, Россия, Новосибирская область, Черепаново, Пионерский переулок, 4 150 000

Кратко

ID 39834716
Категория Дома
Страна Россия
Регион Новосибирская область
Город Черепаново
Улица Пионерский переулок
Этажность 1
Материал стен деревянный
Площадь общая 50.2
Площадь участка 6.3
Телефон
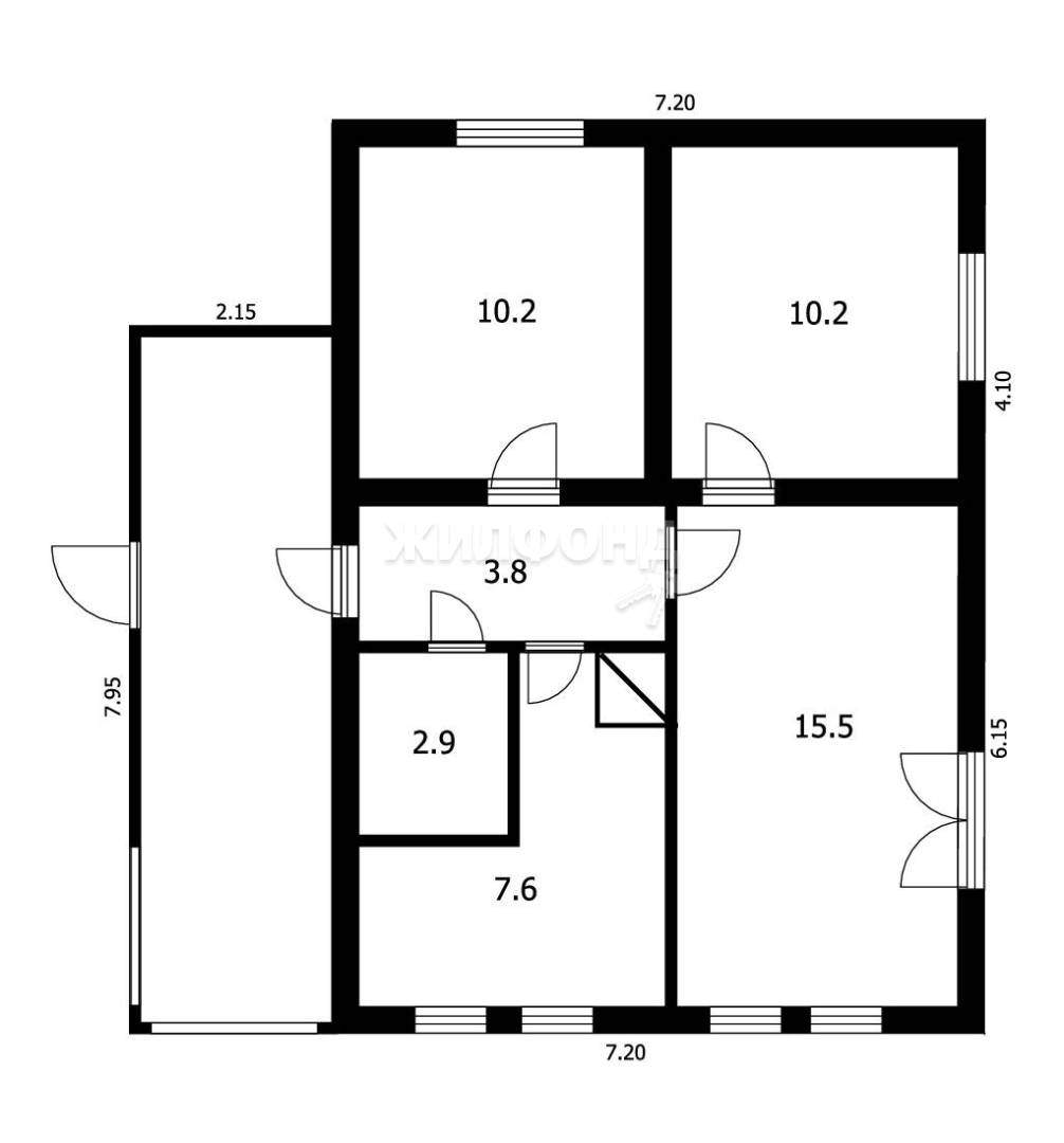
Дом по ул. Пионерский переулок. Общей площадью: 50.20 кв.м. В продаже отдельностоящий дом в г. Черепаново. В объекте выполнен хороший современный ремонт . Установлены новые пластиковые стеклопакеты, натяжной потолок , на полу качественный линолиум . В доме оборудована Душевая кабина и санузел . В доме центральное : отопление, вода, газ. Новым владельцам в подарок остается вся мебель и часть техники : бойлер , холодильник, плита , стиральная машина. Дом обшит сайдингом, огорожен металлическим забором. Дом расположен на ровном , не затапливаемом участке. Размер участка 6 соток . Рядом с объектом развитая инфраструктура . Не упустите свой шанс приобрести прекрасное место для жизни ! Чистая продажа , документы готовы к сделке ! Торг ! Возможен обмен на вашу недвижимость. Возможна продажа в рассрочку. При звонке, пожалуйста, сообщите номер варианта - JV008054159370 [#6366674#]

Карта

Похожие

Дома
Площадь м2: 46.2//
Этаж: 0/1
Дома
Площадь м2: 50.2//
Этаж: 0/1
Дома
Площадь м2: 49.4//
Этаж: 0/1
Дома
Площадь м2: 110.4//
Этаж: 0/1